- Wohneinheitenfläche
- Um 174 m²
- Grundstücksfläche
- Um 295 m²
- Baujahr
- Baujahr 1951
- Anzahl der Zimmer
- 6 Räume (5 Schlafzimmer)
Erdgeschoss
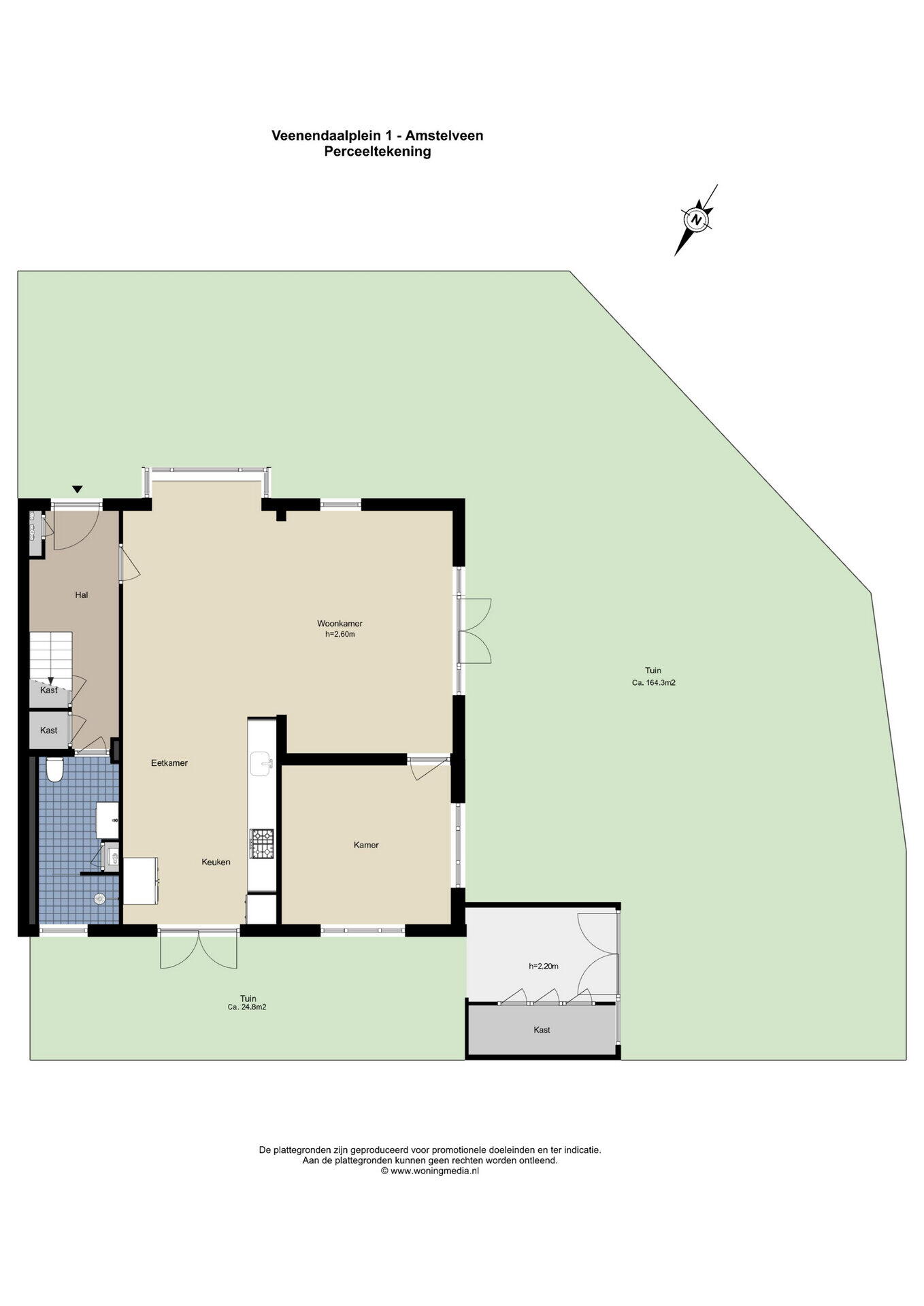
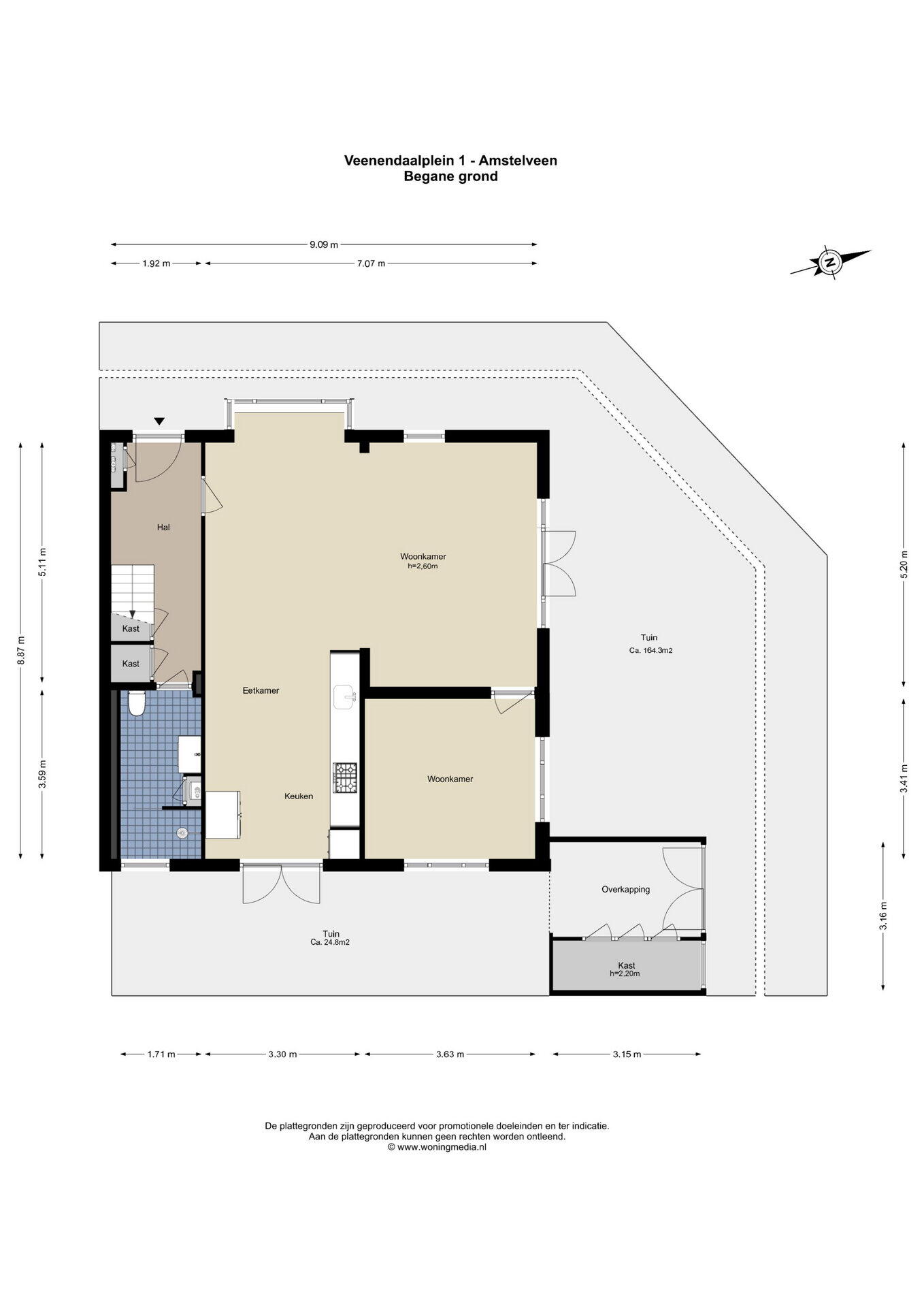
De entree is bereikbaar via de riante voortuin. U stapt binnen in de ruime hal met garderobe, meterkast, CV-ruimte en een separaat toilet. Vanuit de hal bereikt u de royale en zonnige woonkamer. Aan ruimte geen gebrek, want de living beslaat de gehele lengte en een deel van de voorzijde van de woning. Hoewel de woonkamer nu uit twee ruimtes bestaat, is deze met een simpele ingreep aanzienlijk te vergroten, waardoor één royale living ontstaat. Door de gunstige hoekligging en vele ramen wordt de gehele begane grond voorzien van een fantastische lichtinval. Aan de achterzijde bevindt zich de open keuken. Vanuit de keuken en de living zijn via openslaande deuren de tuinen bereikbaar. De onderhoudsvrije zijtuin is gelegen op het noordoosten, terwijl de achtertuin met zijn ideale ligging op het zuidwesten garant staat voor vele zonuren.
Eerste Verdieping
De eerste verdieping telt drie zeer ruime slaapkamers, een aparte waskamer en een complete badkamer. De badkamer is uitgerust met een ligbad, douche, tweede toilet en een dubbele wastafel. De hoofdslaapkamer biedt daarnaast het comfort van een eigen walk-in closet.
Tweede Verdieping
Via een vaste trap bereikt u de tweede verdieping. Hier bevindt zich de vierde slaapkamer en volop bergruimte.
Laat u verrassen door de unieke indeling, ruimte en sfeer van deze bijzondere gezinswoning en plan snel een afspraak voor een bezichtiging! Raadpleeg onze plattegronden voor de exacte indeling en maatvoering van deze woning.
Umfeld
De woning ligt op de hoek van het Veenendaalplein en Bovenkerkerkade en is een schitterende, groene kade gelegen in het rustige, voor sommigen onbekende gedeelte van Amstelveen maar zeker de moeite om zelf te ervaren want de locatie is nl. perfect! Het Amsterdamse Bos en Shopping centrum Het Stadshart zijn beide op loop/fietsafstand evenals het gezellige Oude Dorp (met vele restaurants) en De Poel. Schiphol, De Zuidas/WTC en de regio Groot-Amsterdam zijn goed en eenvoudig (filevrij) te bereiken via de nabij gelegen A9. Verschillende goede basis- en middelbare scholen evenals de International School en diverse sportverenigingen zijn allen op korte afstand gelegen. In de buurt geldt betaald parkeren, bekijk www.amstelveen.nl/parkeren voor meer informatie omtrent (bezoekers) vergunningen.
Besonderheiten
- Woonoppervlak ca. 174 m²
- Inhoud ca. 568 m³
- Bouwjaar ca. 1951
- CV en warmwater via CV installatie
- Energieausweis C
- Abgabe nach gegenseitiger Absprache
Op deze verkoop is een asbest-, niet zelfbewonings- en ouderdomsclausule van toepassing.
Besprechungsanweisung
Das Verkaufte wurde gemessen unter Berücksichtigung der Messanleitung, die auf den Normen basiert, wie in NEN 2580 festgelegt. Die Messanleitung soll eine einheitlichere Methode des Messens einführen, um einen Indikator für die Nutzfläche zu geben. Die Messanleitung schließt Unterschiede in Messergebnissen nicht vollständig aus durch beispielsweise Interpretationsunterschiede, Rundungsfehler und Einschränkungen beim Durchführen einer Messung.
Die Wohnung wurde von einem zuverlässigen professionellen Unternehmen gemessen und der Käufer ist frei von den Mitarbeitern von Voorma & Millenaar Immobilienagentur o.G. sowie dem Verkäufer vor eventuellen Abweichungen in den angegebenen Maßen entbunden. Der Käufer erklärt, dass ihm die Gelegenheit gegeben wurde, das verkauft Einheit selbst (lassen) messen gemäß NEN 2580.
„*** Diese Immobilie wird von einem MVA-zertifizierten Auslands-Berater angeboten ***"
This exceptional and very charming 1950s corner house (approx. 174 m² NEN-measured) is situated in an extraordinary, quiet location. The house is on a generous plot of 295 m² and features a front, side, and back garden. All of this is just a stone's throw away from the unique Old Village of Amstelveen. The house has been carefully maintained. This is immediately evident in its excellent condition and the preserved authentic details, such as the attractive stained-glass elements.
Erdgeschoss
The entrance is accessible via the generous front garden. You step into the spacious hall with a cloakroom, meter cupboard, central heating (CV) room, and a separate toilet. From the hall, you reach the spacious and sunny living room. There is no shortage of space, as the living area spans the entire length and part of the front of the house. Although the living room currently consists of two areas, it can be significantly enlarged with a simple intervention, creating one generous living space. Due to the favourable corner location and numerous windows, the entire ground floor is provided with fantastic natural light. The open kitchen is located at the rear. The gardens are accessible from the kitchen and the living area through French doors. The low-maintenance side garden faces the northeast, while the back garden, with its ideal south-westerly orientation, guarantees many hours of sunshine.
Erster Stock
The first floor has three very spacious bedrooms, a separate laundry room, and a complete bathroom. The bathroom is equipped with a bathtub, shower, second toilet, and a double sink. The master bedroom also offers the comfort of a private walk-in closet.
Zweiter Stock
You reach the second floor via a fixed staircase. Here you will find the fourth bedroom and plenty of storage space.
Be surprised by the unique layout, space, and ambiance of this special family home and quickly schedule an appointment for a viewing! Please consult our floor plans for the exact layout and dimensions of this property.
Gebiet
The house is located on the corner of Veenendaalplein and Bovenkerkerkade and is a magnificent, green quayside situated in a quiet, for some, unknown part of Amstelveen, but certainly worth experiencing for yourself because the location is, in fact, perfect! The Amsterdamse Bos and Shopping Centre Het Stadshart are both within walking/cycling distance, as are the pleasant Old Village (with many restaurants) and De Poel lake. Schiphol Airport, De Zuidas/WTC, and the Greater Amsterdam region are easily and simply accessible (without traffic jams) via the nearby A9 motorway. Several good primary and secondary schools, as well as the International School and various sports clubs, are all located nearby. Paid parking applies in the neighbourhood; check www.amstelveen.nl/parkeren for more information about (visitor) permits.
Spezifika
- Living area approx. 174 m²
- Volume approx. 568 m³
- Year of construction approx. 1951
- Heating and hot water via CV installation
- Energieausweis C
- Lieferung nach Absprache
An asbestos, non-occupancy, and age clause apply to this sale.
Messanweisung
The property for sale has been measured using the Measurement Instruction (Meetinstructie), which is based on the standards laid down in NEN 2580. The Measurement Instruction is intended to apply a more uniform method of measurement to provide an indication of the usable floor area. The Measurement Instruction does not completely exclude differences in measurement results due to, for example, differences in interpretation, rounding, and limitations when performing a measurement.
The house has been measured by a reliable professional company, and the buyer indemnifies the employees of Voorma & Millenaar real estate agents and the seller for any deviations in the specified dimensions. The buyer declares that they have been given the opportunity to (have) measure the property for sale themselves in accordance with NEN 2580.
Übertrag
- Verhandlungspreis
- 1.300.000 € k.k.
- Status
- verfügbar
- Hinnehme
- Im Gespräch
Bau
- Gegenstandsart
- Einzelhaus, Eckwohnung
- Bauart
- Existierende Bauwerke
- Baujahr
- 1951
- Dachart
- Dach First mit Schindeln bedeckt
Oberfläche und Inhalt
- Wohneinheitenfläche
- 174 m²
- Grundstücksfläche
- 295 m²
- Inhalt
- 665 m³
- Außenbereich
- 3 m²
Einteilung
- Anzahl der Zimmer
- 6 Räume (5 Schlafzimmer)
- Anzahl der Badezimmer
- 2 Badezimmer
- Badezimmerausstattung
- Toilet, douche, wastafel, wastafelmeubel ligbad, toilet, dubbele wastafel, wastafelmeubel
- Anzahl der Wohnetagen
- 3 Wohnetagen
- Maßnahmen
- Fernsehkabel
Energie
- Energietag
- C
- Energietag-Register
- 24-05-2022
Außenraum
- Lage
- An ruhiger Straße, in Wohngebiet
- Garten
- Hintergarten, Vorgarten, Seitengarten
- Lage des Gartens
- Liegende im Osten
Bergspace
- Schleifwerkstatt / Lager
- Einzelfertige Holllager
Garage
- Garagenart
- Keine Garage
Parkplatz
- Parkplatzart
- Gebührliche Parkplatznutzung, Parkausweise, auf eigenen Grundstücken
Energieverbrauch ein Amstelveen
Energietag der Wohnung
Energielabel C
Energietagmenteil: 24-05-2022
Jahres-Stromverbrauch
(Durchschnitt Winkelhaus in Amstelveen)
Gaskonsum pro Jahr
(Durchschnitt Winkelhaus in Amstelveen)
* Zahlen stammen vom CBS und sollen als Indikatoren dienen und können für diese Wohnung unterschiedlich sein
Hypothekenbelastungen
Eigene Einlage:
Ersparnisse / Überwert
Zins:
Niedrigste 10-Jahres-Zinssatz
Niedrigste 10-Jahres-Zinssatz
2,85% - Centraal Beheer Groen... - NHG
3,08% - Centraal Beheer Groen... - 80%
Niedrigste 20-jährige Zinssatz
3,29% - Centraal Beheer Groen... - NHG
3,52% - Centraal Beheer Groen... - 80%
Niedrigste 30-jährige Zinssatz
3,41% - Centraal Beheer Groen... - NHG
3,74% - Centraal Beheer Groen... - 80%
Hypothek:
Bruttomonatslasten: € 0 p/m
Nettomonatskosten: € 0 p/m
Wie berechnen wir dies?
Der Zinssatz basiert auf dem niedrigsten 10-jährigen Festzins für einen einzelnen Hypothekenteil. Der angegebene Zinssatz (3.08% zonder NHG) wurde am 17-01-2026 überprüft. Diese Berechnung basiert auf einer Annuitätenhypothek, die vollständig zurückgezahlt wird, wobei die monatlichen Zahlungen während der gesamten Laufzeit gleich bleiben. Der tatsächliche Zinssatz und die monatlichen Nettokosten können je nach Ihrer persönlichen Situation und dem Hypothekengeber variieren. Wenden Sie sich für eine genaue Berechnung und Beratung an einen Finanzberater. Aus dieser Berechnung können keine Rechte abgeleitet werden; sie dient lediglich als Orientierung.
Dokumentation
Katasterkarte
Lebensumgebung
Planansichten PDF
Wertbescheinigung
Krankenkassenbeleg
Broschüre
Besuchen Sie unsere Website
Besichtigung
Boden verlegen
Wertschätzung
Suchanfrage
Alles herunterladen
Sonnengrenzen betrachten
Bewohner von Amstelveen
Zahlen für Postleitzahl-Region 1185
- Gesamtbevölkerungszahl
- 11920 Bewohner
- Männer
- 47%
- Frauen
- 53%
Bewohner von Amstelveen
Zahlen für Postleitzahl-Region 1185
- bis 15 Jahre
- 16%
- 15 bis 25 Jahre
- 9%
- 25 bis 35 Jahre
- 28%
- 45 bis 65 Jahre
- 24%
- 65 und älter
- 23%
Haushalte von Amstelveen
Zahlen für Postleitzahl-Region 1185
- Einpersonig ohne Kinder
- 44%
- Erwachsene ohne Kinder
- 24%
- Haushalte ohne Kinder
- 68%
Haushalte von Amstelveen
Zahlen für Postleitzahl-Region 1185
- Haushalte mit einem Kind
- 9%
- Haushalte mit mehreren Kindern
- 23%
- Haushalte mit Kindern
- 32%
Wohnungen in Amstelveen
Zahlen für Postleitzahl-Region 1185
- Wohnungen vor 1945
- 6%
- Wohnungen zwischen 1945 und 1965
- 64%
- Wohnungen zwischen 1965 und 1975
- 5%
- Wohnungen zwischen 1975 und 1985
- 1%
- Wohnungen zwischen 1985 und 1995
- 11%
Wohnungen in Amstelveen
Zahlen für Postleitzahl-Region 1185
- Wohnungen zwischen 1995 und 2005
- 5%
- Wohnungen zwischen 2005 und 2015
- 6%
- Wohnungen nach 2015
- 3%
- Mietwohnungen
- 60%
- Eigentumswohnungen
- 40%
Sonstige Einzahlungen Amstelveen
Zahlen für Postleitzahl-Region 1185
- Durchschnittliche WOZ-Wert
- € 364.000,-
- Personen unter 65 Jahren mit Hinterbliebenengeld
- 7%
Sonstige Einzahlungen Amstelveen
Zahlen für Postleitzahl-Region 1185
- Adressen pro Quadratkilometer
- 2877
- Urbanität (Skala von 1 bis 5)
- 100%
Voorma & Millenaar makelaars
Falls Sie Fragen haben oder eine Besichtigung planen möchten, können Sie das Formular rechts verwenden. Danach wird Ihnen kurzfristig jemand kontaktieren.
Amsterdamseweg 176
1182 HL, Amstelveen
020 - 641 8694 amsterdam@voormamillenaar.nl www.voormamillenaar.nlKontakt aufnehmen
Wer ist Voorma & Millenaar?
Voorma & Millenaar Immobilienagentur, gegründet 1966, ist seit langem ein vertrauenswürdiges Markenname auf dem Immobilienmarkt von Amstelveen. Unsere zugängliche Büranlage befindet sich in der Amsterdamseweg in Amstelveen und wird durch ein begeistertes und proaktives Team unterstützt, das Ihnen immer zur Verfügung steht.
Unser Know-how liegt im Beraten und Vermitteln auf dem Immobilienmarkt von Amstelveen sowie in den angrenzenden Gemeinden. Bei Voorma & Millenaar steht die Bereitstellung erstklassiger Service im Vordergrund, wobei wir das Interesse unserer Kunden in den Mittelpunkt stellen.
Unser gesamtes Team, basiert an der Amsterdamseweg, steht Ihnen zur Verfügung! Es besteht aus engagierten Profis, die alles tun, um die besten Ergebnisse zu erzielen. Aufgrund dieser Hingabe unterscheiden wir uns seit Jahren durch unerreichte Resultate und Service.
Neueste Bewertungen
-
Tulpenburg 4
Ze hebben ons super geholpen. Sterke service, makkelijk benaderbaar en leuk in de omgang. En niet geheel onbelangrijk, handelen vanuit kennis met de bijbehorende resultaten. Aanrad...
-
Tulpenburg 4
Ze hebben ons super geholpen. Sterke service, makkelijk benaderbaar en leuk in de omgang. En niet geheel onbelangrijk, handelen vanuit kennis met de bijbehorende resultaten. Aanrad...
-
Bolestein 280
Het contact met de makelarr liep heel goed! Het personeel op kantoor zijn uitermate behulpzaam. Een suoer goed ervaring. Een aanrader.